Repräsentative denkmalgeschützte Stadtvilla TOP Renoviert!
71636 Ludwigsburg, Bürofläche zur Miete
Referenz
Dieses Objekt wurde bereits erfolgreich vermittelt.
Objektbeschreibung
Beschreibung
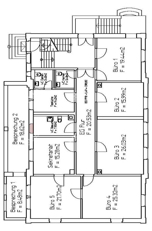
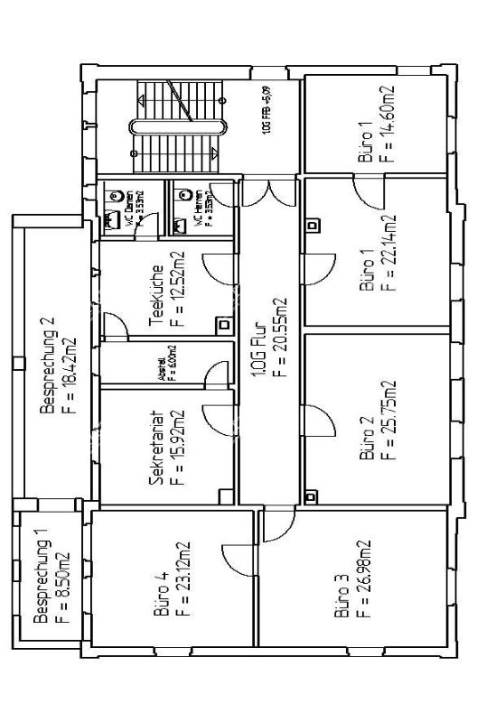
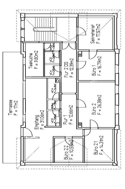
Diese wunderschöne und sehr repräsentative Stadtvilla, qualitativ hochwertig mit dem Denkmalamt renoviert, wird von uns zur Anmietung angeboten. zur Vermietung stehen an das Erdgeschoss sowie das Dachgeschoss. Das 1 OG. ist bereits vermietet. Parkmöglichkeiten sind im ausreichendem Maße vorhanden Stellplatzmiete € 45,-! Außenanlage / Fassade und die restlichen Innenarbeiten werden in den nächsten Wochen abgeschlossen.
Ausstattung
Bei Interesse senden wir Ihnen eine aussagekräftige Beschreibung zu! Vorab eine Kurzbeschreibung! EG: 184 qm, DG: 195 qm. Bei rechtzeitiger Anmietung kann noch auf Ihre Vorstellung von Raumgrößen, Bodenbelägen, Wandanstrichen, Datenverkabelung und desweiteren Rücksicht genommen werden. Mietpreise sowie Grundrisse finden Sie i n der Objektbeschreibung!
Lage
Ludwigsburg zentrale Lage, unweit des Hauptbahnhofes.
71636 Ludwigsburg, Deutschland (auf Google Maps ansehen)






