Geräumiges Stadthaus-DHH mit EBK, Terrasse, 4 Schlafzimmer und einer Doppelgarage
71409 Schwaikheim, Doppelhaushälfte zum Kauf
Referenz
Dieses Objekt wurde bereits erfolgreich vermittelt.
Objektbeschreibung
Kurzbeschreibung
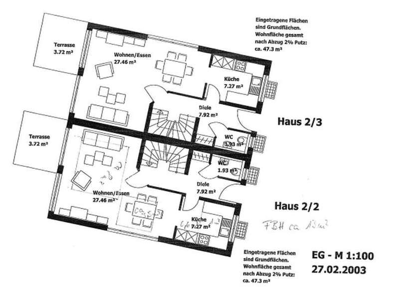
Im Auftrag vermitteln wir eine Doppelhaushälfte in Ortskernlage von Schwaikheim mit ca. 135 m² Wohnfläche aufgeteilt in Wohnzimmer, Esszimmer, Küche, Elternschlafzimmer wie 3 Kinderschlafzimmer. Mit in der WFL beinhaltet ist ein Gäste WC im EG., das Hauptbad im 1 OG., sowie ein Abstellraum im DG., dieser ist vorbereitet zum Ausbau als zusätzliches Bad.
Die Nutz- und Kellerfläche mit ca. 43 m² setzt sich aus Hobbyraum, Waschküche und Kellerraum zusammen. Das Kellergeschoss hat einen separaten, teilweise überdachten, Zugang zur Terrasse/Gartenfläche sowie einen direkten Zugang zur Doppelgarage in der Tiefgaragenanlage. Die Doppelgarage in der TG.- Anlage wird im WEG Recht erworben und separat verwaltet. Eine weitere Abstellfläche befindet sich unter dem Dachgiebel mit ca. 30 m², teilweise begehbar.
Das Haus wurde 2004 auf einem Grundstück mit 179 m² in massiver Bauweise und
mit einer Brennwert-Gastherne erstellt.
Energieausweis Daten: Verbrauch inkl. Warmwasserversorgung 71,3 kWh (m2 x a).
Der jetzige ordentliche und technische Zustand des Hauses erlaubt Ihnen,
nach Streichen der Wohnräume, den sofortigen Einzug nach Kauf.
Beschreibung
Im Auftrag vermitteln wir eine Doppelhaushälfte in Ortskernlage von Schwaikheim mit ca. 135 m² Wohnfläche aufgeteilt in Wohnzimmer, Esszimmer, Küche, Elternschlafzimmer wie 3 Kinderschlafzimmer. Mit in der WFL beinhaltet ist ein Gäste WC im EG., das Hauptbad im 1 OG., sowie ein Abstellraum im DG., dieser ist vorbereitet zum Ausbau als zusätzliches Bad.
Die Nutz- und Kellerfläche mit ca. 43 m² setzt sich aus Hobbyraum, Waschküche und Kellerraum zusammen. Das Kellergeschoss hat einen separaten, teilweise überdachten, Zugang zur Terrasse/Gartenfläche sowie einen direkten Zugang zur Doppelgarage in der Tiefgaragenanlage. Die Doppelgarage in der TG.- Anlage wird im WEG Recht erworben und separat verwaltet. Eine weitere Abstellfläche befindet sich unter dem Dachgiebel mit ca. 30 m², teilweise begehbar.
Das Haus wurde 2004 auf einem Grundstück mit 179 m² in massiver Bauweise und
mit einer Brennwert-Gastherne erstellt.
Energieausweis Daten: Verbrauch inkl. Warmwasserversorgung 71,3 kWh (m2 x a).
Der jetzige ordentliche und technische Zustand des Hauses erlaubt Ihnen,
nach Streichen der Wohnräume, den sofortigen Einzug nach Kauf.
Ausstattung
Hier ersehen Sie eine Auflistung des Eigentümers mit den durchgeführten Eigenregiearbeiten bzw. höherwertigen Ausstattungsmerkmalen.
Fußbodenheizung im Wohn, Ess und Küchenbereich.
Elektrische Rolläden im gesamten Erdgeschoss. sonst sind alle großen Fenster
mit elektrischem Antrieb, im 1 OG. ausgestattet.
Bodenbeläge mit Parkett, Fliesen und Teppich.
Mobile Heizungssteuerung übers Internet mit Anwesenheitserkennung.
Heizkörper mit zeitgesteuerten Thermostaten.
Teilweise Insektenschutz an den Fenstern.
Elektrische Steuerung der Terrassenmarkise.
Terrassenbrunnen und Regensäule als Wasserspeicher.
Hochwertige Insektenschutzvergitterung an den Lichtschächten.
2 x äussere Wasserentnahmestellen.
Gerne vereinbaren wir einen persönlichen Besichtigungstermin mit Ihnen,
so dass Sie die vielfältigen Details in Augenschein nehmen können.
Sonstiges
Die in diesem Exposee enthaltenen Informationen stammen vom Verkäufer. Der Inhalt dieses Exposé wurde mit Sorgfalt zusammengestellt. Eine Haftung wegen unrichtigen oder unvollständigen Exposé Angaben gegenüber dem Erwerber erfolgt nur, wenn Vorsatz oder grobe Fahrlässigkeit vorliegt; dies gilt auch für die Verletzung evtl. Aufklärungs- oder Hinweispflichten. Unser Nachweis- und/oder Vermittlungshonorar beträgt vom Käufer 4,76 % aus dem Kaufpreis, inklusive der gesetzlichen Mehrwertsteuer, fällig bei notariellem Vertragsabschluss. Bitte beachten Sie, dass wir gemäß § 4, Abs. 6, des Geldwäschegesetzes (GWG) verpflichtet sind, bei der Besichtigung die Legitimation des Interessenten zu prüfen und eine Kopie des Personalausweises zu archivieren. Im Übrigen gelten unsere Allgemeinen Auftragsbedingungen. Weitere interessante Immobilienangebote auf unserer Internetpräsenz! http://www.rietzke.de
Lage
Das Haus liegt im Ortskern von Schwaikheim. Die Stadt Schwaikheim liegt verkehrsgünstig an der B14 zwischen Winnenden und Backnang und hat einen S-Bahn Anschluss nach Stuttgart und Backnang.. Einkaufsmöglichkeiten des täglichen Bedarfs im Ort. Kindergärten, Schulen und Freizeiteinrichtungen sind bequem erreichbar. Naherholung vor der Haustür.
Leintelstr. 2/2, 71409 Schwaikheim, Deutschland (auf Google Maps ansehen)



















