Seltene Gelegenheit freisth. 2-3 Fam.-Haus auf ca. 862 qm in toller Lage
71642 Ludwigsburg, Mehrfamilienhaus zum Kauf
Referenz
Dieses Objekt wurde bereits erfolgreich vermittelt.
Objektbeschreibung
Kurzbeschreibung
Im Alleinauftrag vermitteln wir, das besondere Mehrfamilienwohnhaus in einer grünen Umgebung von Ludwigsburg.
Aufteilung:
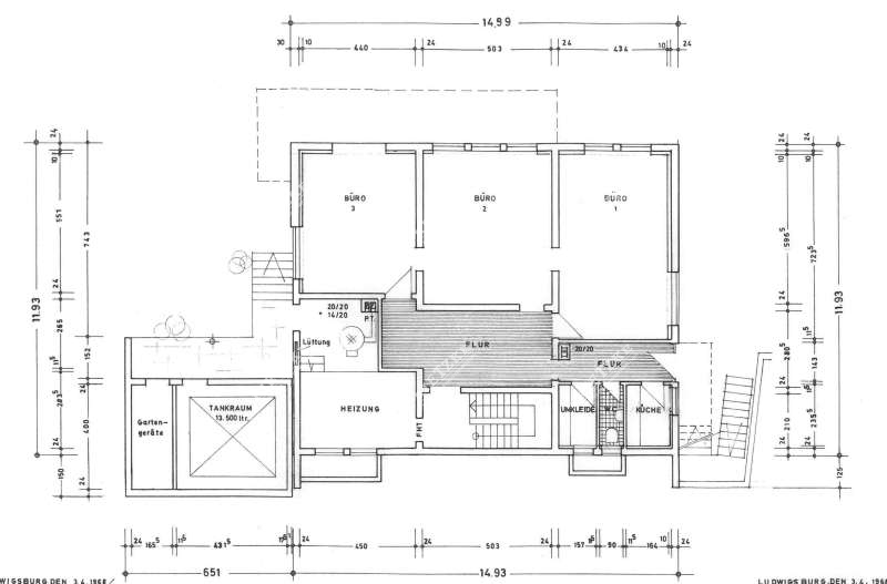
UG. Büroeinheit mit drei Räumen, Teeküche, WC und Abstellraum sowie der Heiz- Technikraum, ehemaliger Öltankraum. Das Büro verfügt über einen direkten Zugang in den Garten. Eventueller Umbau zu einer Wohnung ist denkbar.
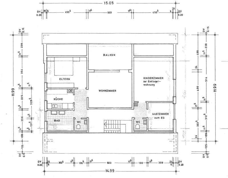
EG. 3 Zimmerwohnung Gäste WC, geräumiger Ess.- und Wohnbereich mit Austritt zur Terrasse sowie zwei Schlafzimmer und ein Abstellraum.
1. OG. Zwei separate Zimmer, sowie eine 2 Zimmerwohnung mit Dachterasse.
Verschiedene Reparaturmaßnahmen wie Installationsarbeiten, Balkonsanierung, Dachsanierung und Fenstertausch sind nötig bzw. zu empfehlen. Diese haben wir im Verkaufspreis berücksichtigt.
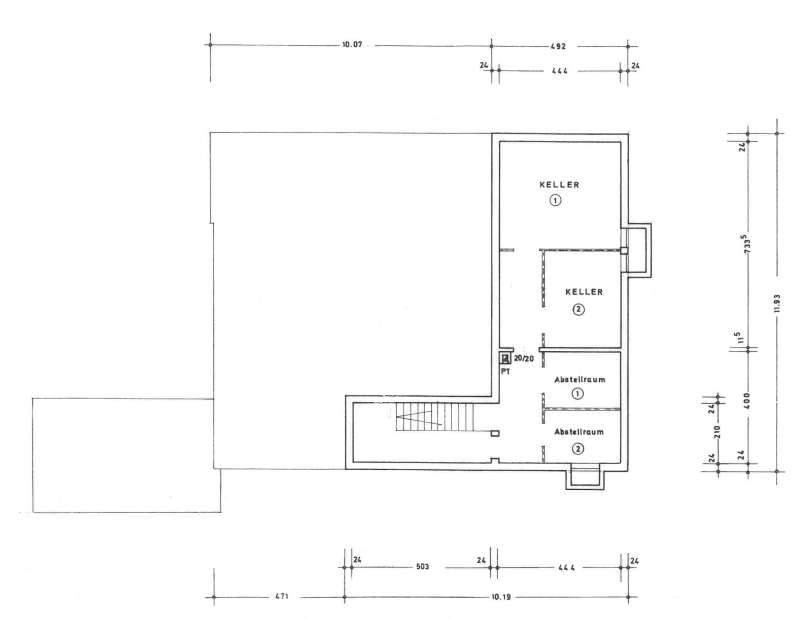
Keller: Der Tiefenkeller verfügt über drei großzügige Kellerräume.
Die Einteilungen der Wohnungen und der Büroeinheit entnemen Sie bitte den beigefügten Grundrissen.
Beschreibung
Im Alleinauftrag vermitteln wir, das besondere Mehrfamilienwohnhaus in einer grünen Umgebung von Ludwigsburg.
Aufteilung:
UG. Büroeinheit mit drei Räumen, Teeküche, WC und Abstellraum sowie der Heiz- Technikraum, ehemaliger Öltankraum. Das Büro verfügt über einen direkten Zugang in den Garten. Eventueller Umbau zu einer Wohnung ist denkbar.
EG. 3 Zimmerwohnung Gäste WC, geräumiger Ess.- und Wohnbereich mit Austritt zur Terrasse sowie zwei Schlafzimmer und ein Abstellraum.
1. OG. Zwei separate Zimmer, sowie eine 2 Zimmerwohnung mit Dachterasse.
Verschiedene Reparaturmaßnahmen wie Installationsarbeiten, Balkonsanierung, Dachsanierung und Fenstertausch sind nötig bzw. zu empfehlen. Diese haben wir im Verkaufspreis berücksichtigt.
Keller: Der Tiefenkeller verfügt über drei großzügige Kellerräume.
Die Einteilungen der Wohnungen und der Büroeinheit entnemen Sie bitte den beigefügten Grundrissen.
Ausstattung
Gerne zeigen wir Ihnen die einzelnen Details bei einer persönlichen Besichtigung.
Das Objekt befindet sich in einem renovierungsbedürftigen Zustand!
Sonstiges
Die Angaben in diesem Exposé beruhen auf die uns erteilten Informationen. Eine Haftung für die Richtigkeit und Vollständigkeit können wir jedoch nicht übernehmen. Unser Nachweis- und/oder Vermittlungshonorar beträgt vom Käufer 4,76 % vom Kaufpreis, inklusive der gesetzlichen Mehrwertsteuer, fällig bei Vertragsabschluss. Bitte sind Sie so freundlich und füllen Sie das Anfrageformular vollständig aus!
Lage
Ludwigsburg, Nähe Schloß und den Favoritegärten.
Wilhelm-Nagel-Str. 18, 71642 Ludwigsburg, Deutschland (auf Google Maps ansehen)










