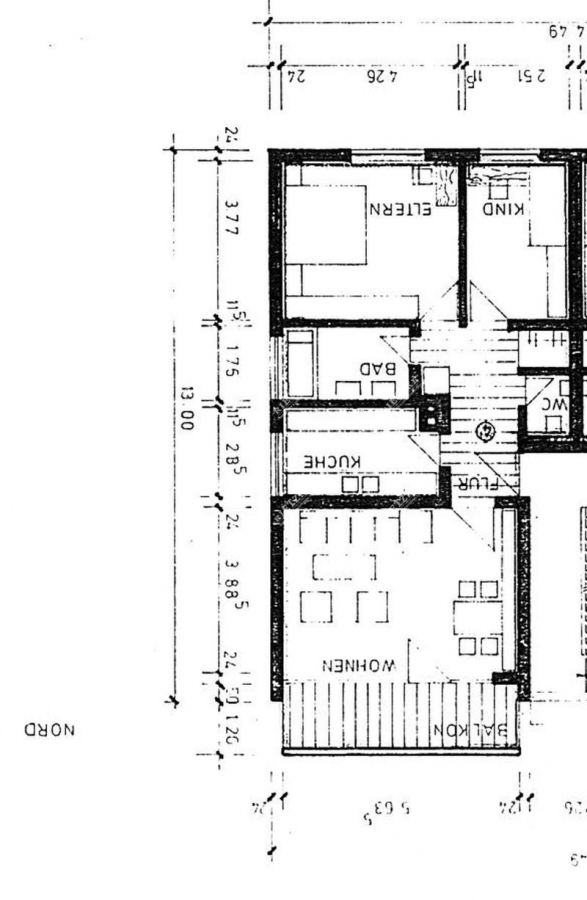
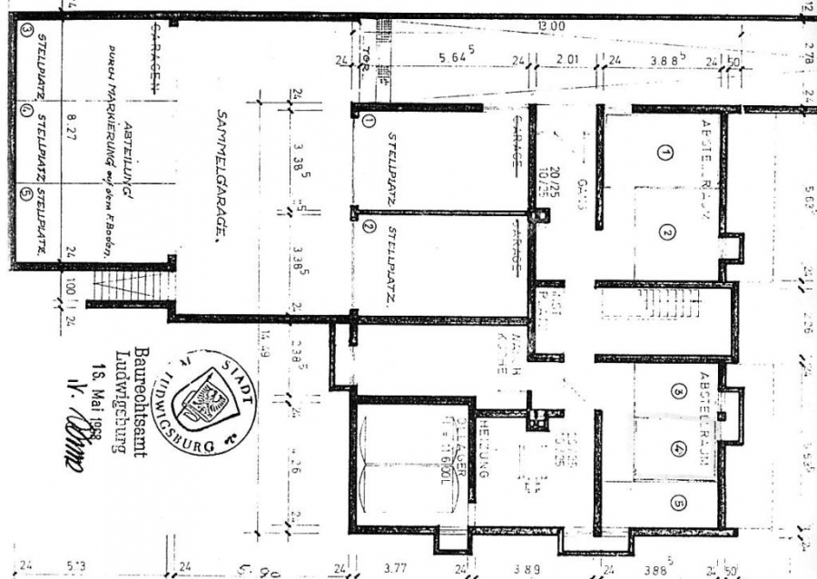
3 Zi.- Wohnung mit Balkon in ruhiger und beliebter Wohnlage, TG.-Stellplatz Reichertshalde
71642 Ludwigsburg, Etagenwohnung zum Kauf
Referenz
Dieses Objekt wurde bereits erfolgreich vermittelt.
Objektbeschreibung
Beschreibung
Im Alleinauftrag bieten wir ihnen an: Dreizimmerwohnung mit Balkon und einen Tiefgaragenstellplatz, sowie zwei Abstellräumen im UG. und Dachboden, in ruhiger und beliebter Wohnlage (Reichertshalde) von Ludwigsburg Nord an. Weitere Informationen bei einer persönlichen Beratung bzw. Vorort bei der Besichtigung. Gutachterausschuss: Verkehrswertberechnung liegt vor.
Ausstattung
Gerne zeigen wir ihnen das gesamte Objekt bei einer persönlichen Begehung. Nehmen sie Kontakt mit uns auf, um einen Termin zu vereinbaren.
- Wohn- / Essbereich (Laminat)
- Schlafzimmer (Laminat)
- Küche (PVC Bodenbelag)
- Gäste-WC (Fliesenboden)
- Flur (Laminat)
Mit den allgemeinen Renovierungsarbeiten (Streichen und Bodenbelagsarbeiten) richten sie sich ihr neues Zuhause zurecht. Gleichfalls wurde die jährliche Erhaltungsrücklage (seit den letzten 4 Jahren) erhöht, sodass auch das Gemeinschaftseigentum mit den bereits gebildeten Vermögen modernisiert werden kann.
Die Wohnung ist zur Zeit vermietet.
Sonstiges
Der Inhalt dieses Exposé wurde mit Sorgfalt zusammengestellt. Eine Haftung wegen unrichtigen oder unvollständigen Exposé Angaben gegenüber dem Erwerber erfolgt nur, wenn Vorsatz oder grobe Fahrlässigkeit vorliegt; dies gilt auch für die Verletzung evtl. Aufklärungs- oder Hinweispflichten. Unser Nachweis- und/oder Vermittlungshonorar beträgt vom Käufer 4,76 % aus dem Kaufpreis, inklusive der gesetzlichen Mehrwertsteuer, fällig bei notariellem Vertragsabschluss. Andrew Rietzke, Immobilien ist in gleicher Höhe provisionspflichtig für den Verkäufer tätig. Bitte beachten Sie, dass wir gemäß § 4, Abs. 6, des Geldwäschegesetzes (GWG) verpflichtet sind, bei der Besichtigung die Legitimation des Interessenten zu prüfen und eine Kopie des Personalausweises zu archivieren. Im Übrigen gelten unsere Allgemeinen Auftragsbedingungen. Weitere interessante Immobilienangebote auf unserer Internetpräsenz! https://www.rietzke.de
Lage
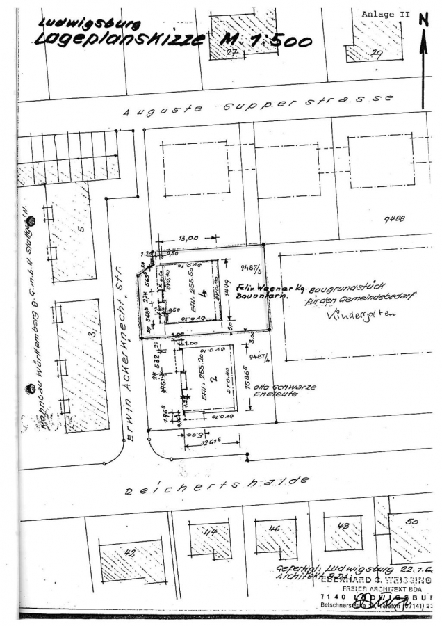
Die Wohnung befindet sich im Stadtgebiet von Ludwigsburg, im Nordostteil, östlich der Bottwartalstraße. Zufahrt erfolgt von dort über die Reichertshalde zur Erwin-Ackerknecht-Straße. Die Wohnlage ist günstig (ruhig, Stichstraße; reiner Anliegerverkehr); Entfernung zur Stadtmitte (Bahnhof mit S-Bahn) ca. 2 km; Bushaltestelle und Einkaufsmöglichkeiten befinden sich im Stadtteil Hoheneck, wenige Gehminuten entfernt. Zu erwähnen ist ferner die Nähe zum Heilbad Hoheneck wie auch zum Schloßpark.
Erwin-Ackerknecht-Str. 4, 71642 Ludwigsburg, Deutschland (auf Google Maps ansehen)






