Helle, geräumige WG-Zimmer für Studenten oder Monteure
70329 Stuttgart, Zimmer zur Miete
Kontaktdaten
-
NameHerr Andrew Rietzke
-
FirmaAndrew Rietzke, Immobilien und Hausverwaltungen
-
AnschriftAm Schleifrain 13-1
71711 Steinheim -
E-Mail
-
Telefon
-
Mobil
-
Fax07144/887962
Objektdaten
-
Objekt-IDARI 10957
-
ObjekttypZimmer
-
AdresseUhlbacher Str. 76
70329 Stuttgart
(Obertürkheim) -
Etage2
-
Etagen im Haus4
-
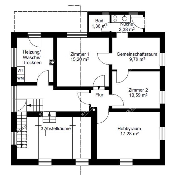
Wohnfläche ca.18 m²
-
Zimmer1
-
Schlafzimmer4
-
Wohn-Schlafzimmer1
-
Badezimmer1
-
KücheEinbauküche
-
HeizungsartZentralheizung
-
Wesentlicher EnergieträgerGas
-
Baujahr1911
-
Letzte Modernisierung2016
-
Zustandgepflegt
-
Ausstattunggehoben
-
Provisionkeine Mieterprovision
-
Kaution3 Nettomieten
-
Nettokaltmiete400,00 EUR
-
Kaltmiete400,00 EUR
-
Miete pro m²22,22 EUR
-
Nebenkosten200,00 EUR
-
Heizkostenin der Warmmiete enthalten
-
Warmmiete600,00 EUR (Heizkosten enthalten)
Ausstattung / Merkmale
- ✓ Einbauküche
- ✓ Garten/Gartennutzung
- ✓ Gäste-WC
- ✓ Kabel-/Sat-TV
- ✓ Keller
- ✓ WG-geeignet
Energieausweis
-
EnergieausweistypBedarfsausweis
-
Ausstellungsdatum06.10.2023
-
Gültig bis10-2033
-
Baujahr1911
-
PrimärenergieträgerGas
-
Endenergiebedarf220,80 kWh/(m²·a)
-
Warmwasser enthaltenja
-
EnergieeffizienzklasseG
Objektbeschreibung
Beschreibung
Entdecken Sie Ihr neues Zuhause:
Die geräumigen Zimmer, bieten für jeden einen eigenen Rückzugsort. Die Wohnung ist gut geeignet vor allem für Monteurzimmer/ Wohngemeinschaft
Raum für jeden:
Jeder findet hier seinen eigenen Rückzugsort. Die geräumigen Schlafzimmer bieten ausreichend Platz für Erholung und Privatsphäre.
Ruhige Lage:
Die Immobilie befindet sich in einer ruhigen Lage, fernab von Verkehrslärm und Hektik.
Ideale Infrastruktur:
Trotz der ruhigen Lage sind Einkaufsmöglichkeiten und Dienstleistungen nur ein Katzensprung entfernt, was den Alltag ungemein erleichtert.
Ausstattung
Die gepflegten zum Teil möblierte Zimmer überzeugen durch ihre vielfältigen Gestaltungsmöglichkeiten, sie bieten viele verschiedene Räumlichkeiten wodurch sie sich perfekt eignen lässt für Wohngemeinschaften. Die Mietwohnungen verfügen über eine Einbauküche, ein Gäste WC, einen Keller, einen separaten Bereich zum Essen ein Badezimmer und einen eigenen Rückzugsort für jeden.
Sonstiges
Kontaktaufnahme bitte nur über E-Mail Anfragen! Eine Mieterselbstauskunft können Sie bei uns anfragen. Bitte geben Sie bei Mietanfragen immer Ihre vollständige Adresse, sowie eine Festnetznummer mit an. Weitere Informationen und Objekte finden Sie hier https://www.rietzke.de Eine Haftung für die Richtigkeit und Vollständigkeit können wir nicht übernehmen.
Lage
Die Immobilie in D-70329 Stuttgart liegt in einem äußerst attraktiven und familienfreundlichen
Umfeld. Diese Gegend bietet eine einmalige Kombination aus ruhiger und dennoch zentraler Lage.
Familiengerecht:
Die Gegend rund um Uhlbach ist bekannt für ihre grünen Flächen und Wanderwege. Zudem verfügt die lokale Gemeinde über ein aktives Vereinsleben, das zahlreiche Freizeitaktivitäten für jeden bietet.
Ruhige Lage:
Uhlbach ist für seine idyllische Umgebung bekannt. Die Weinberge, die sich in unmittelbarer Nähe
erstrecken, laden zu gemütlichen Spaziergängen und Wanderungen ein. Trotz der Nähe zum Zentrum von Stuttgart bietet die Immobilie eine Oase der Ruhe, fernab vom hektischen Stadtverkehr. Diese friedliche Atmosphäre ist perfekt für jeden, der sich nach einem ruhigen Rückzugsort sehnen.
Zentrale Lage:
Obwohl Uhlbach eine beruhigende Abgeschiedenheit bietet, ist es dennoch hervorragend an das
Verkehrsnetz angebunden. Die S-Bahn- und Buslinien sorgen für eine schnelle Anbindung an die
Stuttgarter Innenstadt, was den Zugang zu kulturellen Angeboten, Einkaufsmöglichkeiten und weiteren
Annehmlichkeiten des Stadtlebens erleichtert. Auch die Autobahn ist in kurzer Zeit erreichbar, was
Ausflüge in die umliegenden Regionen vereinfacht.
Points of Interest:
In direkter Umgebung finden sich zahlreiche Einkaufsmöglichkeiten für den täglichen Bedarf sowie
charmante Cafés und Restaurants, die lokale und internationale Küche anbieten. Der nahegelegene
Rotenberg und der Württemberg sind beliebte Ausflugsziele, die nicht nur atemberaubende Ausblicke
bieten, sondern auch einen Einblick in die lokale Geschichte und Kultur gewähren.
Insgesamt bietet die Lage der Immobilie eine harmonische Mischung aus Ruhe und urbanem
Komfort.
Uhlbacher Str. 76, 70329 Stuttgart, Deutschland (auf Google Maps ansehen)


















